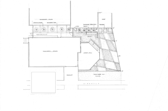
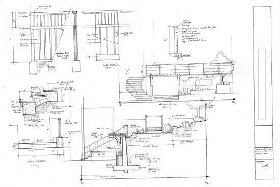
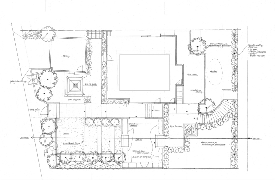
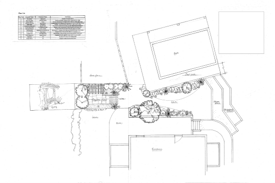
Here are samples of some of the landscape plans we have done for clients in and around the San Francisco Bay Area.
From Landscape Plans to Sarah Ray Landscape Design home
Sarah Ray Design, Albany, CA 510-812-7498
© www.SarahRayLandscapeDesign.com